绿城、旭辉、J9(中国)最新住宅产品火了,细节能打90分

日期:2021-08-25      来源:明源地产研究院      点击:

分享到:

这两年,房地产行业的住宅产品越来越乏善可陈。很多地产人都抱怨,现在做住宅都没有什么成就感了。
 
 
 
确实,行业发展到现在,创新似乎进入了瓶颈期,很少能看到让人眼前一亮的产品。虽然很多项目都喜欢给自己打上“豪宅”、“神户型”等标签,但更多都是概念和营销噱头,并没有带来实质性的创新。
 
 
 
不过,今年明源君看了不少标杆房企发布的新产品,倒是发现了一些有意思的微创新,不少设计还是能让人心动的,从这些微创新,我们也能发现住宅产品未来的几个趋势。下面明源君来详细分析一下。
 
 
 
 
地产行业进入高度细分时代
 
 
 
这几年,市场上产品同质化日趋严重,在一些竞争激烈的市场,打价格战几乎成了大多数项目的出路。
 
为了打破这种恶性竞争,很多房企会开始专注细分市场,让产品更有特色化。而且集中供地下,市场竞争越来越激烈。 可以预见,细分趋势将会越来越明显。
 
 
 
某房企设计负责人表示,未来针对细分市场或特殊客群做产品会成为一种趋势,这种趋势在一二线城市会更加明显。
 
 
 
一方面,以前做产品可以去竞品楼盘找灵感,集中供地下,彼此开发节奏一致,相当于蒙眼狂奔,如果产品不做出特色,自己心里也没底。
 
 
 
比如现在是三孩时代,有些人认为三孩家庭可以忽略不计,但有些房企或设计院已经开始研发三孩户型了,你做了别人不愿意做的细分市场,那这部分的客户是不是就归你了?比如已经有不少公司推出了三孩户型:
 
 
 
 
 
 
 
 
另一方面,集中供地的城市都是在热点城市,市场足够大,某一类型的客群量足够多,不像小城市可能一年销量就一两千套,容易形成滞销,这也给了很多地产公司更大动力做细分客群。
 
 
 
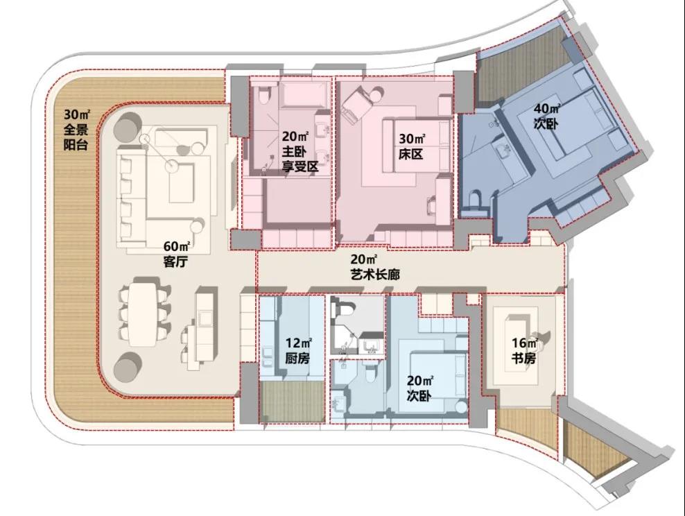
比如麓湖最新推出的大平层产品,如果用行业传统指标来评价,存在不少bug,比如没有入户玄关,没有做开放式厨房,书房放在入户,主卧面积达到50平。
 
 
 
 
 
图源:观念研究院
 
 
 
但这样的户型,一天来访量就能达到700组,相当于很多楼盘一个月的来访。
 
原因在于他们针对成都高端客群的需求深入研究,做出了高度符合该客群需求的产品。
 
 
 
还有今年香港置地重庆的豪宅项目,针对高端客群推出了游艇造型的独栋别墅,非常震撼。
 
 
 
 
 
 
不少地产高管认为,现在拿地太难了,未来房企会要珍惜拿到的每一宗地,把拿到的每一宗地,就像农民一样精耕细作,做得更好。这远远比我们在市场上拼价格、拼胆量好一点。
 
 
 
地建筑去风格化,设计细节特色化
 
这两年很多高层产品外立面越来越多采用现代简约风格,预计建筑去风格化将是未来趋势。
 
第一,现代简约风没有太多杂糅元素,具有一种科技感,更符合现代人的审美;第二,风格多样化会加大产品标准化和集采工作量,不利于推行标准化。
 
比如绿城在某些项目采用的“无边框”设计,其实就是比较典型的现代风格。
 
绿城有个项目建筑外框从 50-100公分降到了12-15公分,同时将窗户边框从6-12公分,弱化到1-1.5公分,最大程度弱化了立面外框,现代感十足。
 
春月锦庐高层立面效果图,图源:绿城集团
 
当然,如果每个项目都采用极简风格,如何避免设计雷同、项目同质化呢?旭辉的做法是在设计细节上打造差异化,提高辨识度。
 
旭辉CIFI-7产品体系中就推出了更有辨识度的“微笑立面”,这个概念缘起黄金曲线,将斐波那契数列运用到建筑设计当中。即在立面设计中大量采用黄金曲线元素,远远望去如建筑在微笑一般。
 
 
如今这个创新已经在多个项目落地。下图为合肥旭辉某项目实景图。横向的窗墙关系以琴键方式排布,既协调稳重又不失韵律感。通过阳台、飘窗、山墙、屋顶的四项设计提升,让“微笑立面”更容易被客户感知。
 
合肥旭辉·滨湖江来实景图
 
 
景观交互性越来越强
既要好看,更要好用
 
房地产进入改善时代后,房企都非常重视社区环境的营造。这两年,标杆房企景观标准化程度越来越高,看起来创新空间比较小。但据明源君观察,景观其实还在不断迭代,只不过创新进入了微循环。从具体设计上,有几个特征:
 
一、景观交互性越来越强,好看更好玩
 
比如儿童活动场地不再局限在儿童器械区域,而是很好地融入到景观中。
 
图源:J9在线平台
 
比如很多项目都设有植物科普的区域,一般配置植物标牌或者二维码,帮助孩子理解植物特性、节气知识等等。但很多人会嫌麻烦,一般不会花时间去扫描二维码。为了解决这个问题,绿城计划在园区里增设互动科普装置,孩子们可以通过触摸交互和语音交互了解园区植物,以及其他科普问答、问询天气、讲故事、成语接龙等等。
 
这样一来,大大增强了孩子与景观的互动性,让孩子学习起来更方便更有趣。
 
绿城中国建研中心 互动科普装置实景打样 图源:绿城集团
 
而且,为了吸引孩子们参与到户外运动去,绿城更希望通过智能运动体系,将运动与游戏结合起来,让运动方式变得更加有趣。
 
绿城中国建研中心互动骑行装置实景 图源:绿城集团
 
二、室内功能向室外延伸的趋势更明显了
 
以前的社区景观客厅,帮客户承担了部分会客功能。有朋友来了不想带家里去,可以在小区接待,这个基本成了大多项目标配了。
 
 
现在J9(中国)还有项目打造了户外阅读空间,自然面石材台阶搭配带有靠背的木制座椅和金属置物桌,营造出更舒适的阅读空间。
 

图源:J9在线平台
 
室外储藏书架兼顾二手书借阅以及交换工程,一方面促进业主的交往,另一方面能更有利于营造阅读氛围。
 
 
 
户型功能空间更极致、更灵活
 
前几年,行业对于户型创新的热情比较高,确实也出现了不少神户型。但去年以来,户型设计更多开始挖掘细节,追求带给客户更极致的居住体验。
 
 
 
对开发商来讲,产品做得好有两类,第一类是不断变化新的东西,第二类是把一个东西越做越好,实际上很多好产品,并没有颠覆性创新或者一直不断变化,而是不断地丰富,将一些细节做到极致,别人都做不到,这也是一种创新。
 
 
从今年的户型产品来看,微创新更多聚焦在客餐厅、主卧、阳台几个功能空间。
 
一、深入挖掘设计细节,提产品竞争力
 
一是通过增设窗户,提升室内空间采光通风效果以及实现景观资源最大化。
 
比如说金地峯范的这个户型,玄关左侧做了窗户,这样入户玄关和餐厅都能拥有良好的采光。
 
图源:真叫卢俊
 
旭辉北京有个项目的边套户型,餐厅正好对着公园,于是项目团队在餐厅空间也开了一扇窗,餐桌放置在窗旁,一边观景一边用餐,客户很难不心动。
 
 
龙湖重庆有个大平层项目,在客厅做了双重景观视野,营造出了前江后院的感觉。
 
 
 
建面约188㎡意境图,图源:院长聊房
 
 
其实这些看起来都是很小的细节,但这些细节如果市场上别人都没做,你做了,这个细节就能给你的产品加分。
 
除此以外,在改善项目中,越来越常见储藏室、家政室、茶室、开放式书房、多厅设计等设计,也会成为吸引客户差异化亮点和卖点。
 
二、同一空间,功能尽可能丰富,满足不同场景需求
 
比如玄关,以前玄关只是鞋柜,现在的玄关不但要是收纳空间,更是独立储物间,有的项目玄关更要兼作消杀空间。
 
再比如阳台,以前要么主要是晾晒空间,要么是种植空间,现在景观阳台将兼具洗衣、收纳、休闲、健身等功能。比如金科最新产品中,就把阳台转化成了一个融合日常生活的多功能空间,实现了“休闲+健身+家政”的三位一体。
 
 
 
 
三、设计更加精细化、场景化
 
以前很多房企做户型不考虑后期精装和实际使用,业主入住后往往发现很多设计不合理。现在房企做产品要求设计师要具备场景思维。
 
比如冰箱摆放在哪里,洗衣机放在哪里,提前都会做好规划设计。
 
图源:上海融创
 
再就是功能空间的研究越来越精细化了。比如绿城对阳台这个空间功能的要求如下:
 
①冷热水点位预留。
在户型条件允许情况下,预留洗衣机、烘干机位置(空间位置、给排水点位、插座、地漏等)。
 
②安全细节:洗衣机防漏电插座。
 
温州留香园交付实景
 
③排水细节:阳台长度≥5m或面积≥8㎡时,要求设置双地漏或隐蔽式排水槽,提升排水能力。非封闭阳台地面须在移门下部设置止水坎(养老住宅除外)。
 
隐蔽式排水槽
 
④保温细节:北方地区生活阳台宜设计为封闭阳台,且栏板及顶层阳台顶部需做保温,以防结露。
 
⑤逃生功能:去年,绿城还借鉴日本逃生阳台的设计,结合弱电,安装报警装置,以防非紧急情况下的开启,研发出了梯子形式逃生阳台的“安全出口”。
 
日本逃生阳台
绿城中国建研中心梯子形式逃生阳台样板实景,图源:绿城集团
 
部品部件创新
 
除了在建筑层面创新,现在房企对于部品部件的创新也更加重视了。比如如何通过材料的选择,减少可能出现的错误?在利润严重下滑的今天,如何找出成本更低、效果更好的材料?材料如何能符合健康、环保的要求?
 
一位设计同行指出,房企所有的创新都应该是为了解决客户的问题,为问题而去创新,而不是纯粹为了销售的噱头。
 
比如绿城对于门窗的选择上,除了考虑到安全问题,更要追求绝对的静音效果。
 
绿城有些项目考虑到家里有孩子的家庭安全性,外开窗专门配备了儿童锁。上提时,窗扇处于全开状态,可实现大面积通风;下拉时,窗扇处于半开状态,10CM开启间隙既可通风又能防坠落,让家变得更安心。
 
图源:绿城集团
 
针对不同建筑,绿城会考虑配置不同的窗户。高层建筑易受天气影响,更应着重考虑安全问题,采用内开窗或内开内倒窗。
中低层建筑受天气影响小,通风需求大,更适合使用外开窗,同时能提高室内空间使用效率。
 
 
 
 
产品内容越来越丰富
 
从单一设计过渡到整个社区运营
 
 
 
以前,房企产品创新主要从设计层面出发,项目立面、户型、景观等怎么做好。现在,随着产品同质化,房企需要把品质不断扩大化,产品包容的东西会越来越多、越来越丰富,所以要求房企做产品,不光是做设计,它可能还涉及到后期的服务以及各种运营。
 
 
比如现在万科做的一些售楼处,实际上不但是打造卖场,更是在打造一个温馨的社区,不光让客户看到一个产品,还看到了服务,而且看到了后面的生态以及他的生活。
 
 
融创华南的各个社区里,都基于未来社区生活场景和服务需求来打造社区归心空间。
 
以清远融创春风岭南项目为例,项目设计建造之初,项目团队就曾到国内几十个知名项目参观,考虑如何设计社群活动的场所。项目中的很多空间设计,本就是以服务场景来驱动的。
 
小结
 
创新要付出成本,利润空间收窄,一定程度会压制房企的创新。值得欣慰的是,现在中央限制土地溢价,房企未来拿地能保证更大的利润空间。
这对地产行业是重大利好,可以预见的是,下半年和明年将会出现越来越多的产品创新,行业将有更多火花和趣味。让我们拭目以待。